产品列表
ZHG型反捞式格栅除污机

概述
反捞式格栅除污机为粗格栅,又称雨水格栅,或者回转耙式格栅,是一种用于清除水体重较大固体悬浮物的大型粗格栅设备,本装置可以连续清除液体中的固体悬浮物,设计合理,结构简单,运转安全可靠,自动化程度高,可广泛运用于城市污水处理,自来水厂取水口,雨水泵站,发电厂冷却水取水口等大流量的水处理场所。设备结构参照了回转式格栅除污机的优点,采用与众不同的工作原理,即耙齿链在栅前后作回转运动,当耙齿运转到栅条的迎水面时,即插入栅条缝隙中由下往上作清捞动作,耙齿链采用封闭式,不让杂物侵入,使设备运转平稳。在设备安装时采用整机吊装,只需在集水井两侧的地坪上预埋两块钢板,土建简单,安装维修方便。
工作原理
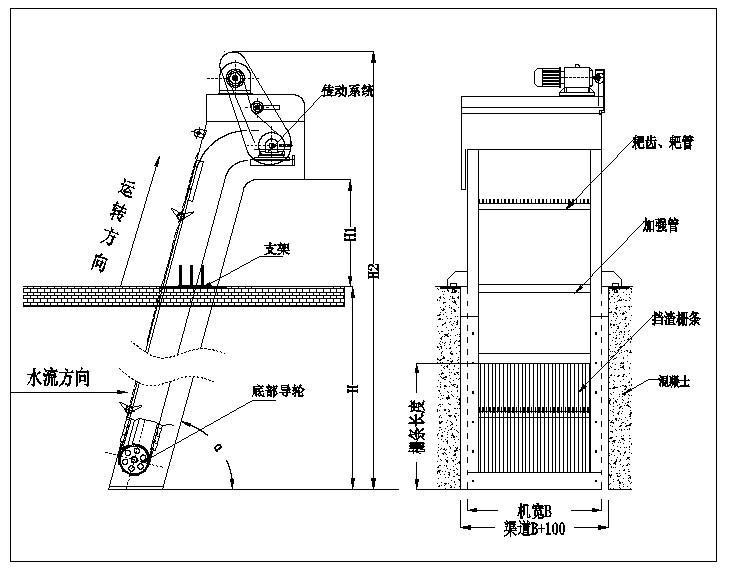
反捞式格栅除污机由机架、驱动装置、传动导轮、耙链组合及耙齿、挡渣栅条。挡渣板等组成。在电机驱动下,牵引链条在迎水面由下往上作回转运动。当牵引链上的耙齿轴运转到栅条的迎水面时。耙齿即插入栅条缝隙中由下往上作清捞动作,将栅条上所截留的杂物刮落耙中,清除效率高且彻底。当齿耙运转到机器上,杂物靠自重自行脱落至容器或输送机上,把杂物送走。
反捞式格栅除污机为粗格栅,又称雨水格栅,或者回转耙式格栅,是一种用于清除水体重较大固体悬浮物的大型粗格栅设备,本装置可以连续清除液体中的固体悬浮物,设计合理,结构简单,运转安全可靠,自动化程度高,可广泛运用于城市污水处理,自来水厂取水口,雨水泵站,发电厂冷却水取水口等大流量的水处理场所。设备结构参照了回转式格栅除污机的优点,采用与众不同的工作原理,即耙齿链在栅前后作回转运动,当耙齿运转到栅条的迎水面时,即插入栅条缝隙中由下往上作清捞动作,耙齿链采用封闭式,不让杂物侵入,使设备运转平稳。在设备安装时采用整机吊装,只需在集水井两侧的地坪上预埋两块钢板,土建简单,安装维修方便。
工作原理
反捞式格栅除污机由机架、驱动装置、传动导轮、耙链组合及耙齿、挡渣栅条。挡渣板等组成。在电机驱动下,牵引链条在迎水面由下往上作回转运动。当牵引链上的耙齿轴运转到栅条的迎水面时。耙齿即插入栅条缝隙中由下往上作清捞动作,将栅条上所截留的杂物刮落耙中,清除效率高且彻底。当齿耙运转到机器上,杂物靠自重自行脱落至容器或输送机上,把杂物送走。

特点与应用
在运行过程中,杂物可能进入牵引链中,将链条卡死,故设计了封闭式牵引链。其主要有链板、链销和滚轮组成,运行时由机架上的导轨作导向,滚轮在导轨上作滚动运动,阻力小且运转平稳。
水下回转轮定位采用不锈钢材质,配以耐磨铜套自润滑轴承,免去水下部件的日常维护。
挡渣部分采用固定栅条形式,有较强的耐冲击力,能承受较大的水位差。
基于以上优点,反捞式格栅应用于较宽的河道拦污、雨水泵站、河道取水口、污水厂粗格栅等大流量的水处理场所。
订货参数
1、渠道(设备)宽度 2、渠道深度 3、出料高度 4、耙齿间隙 5、安装角度 6、机架材质 7、耙齿材质 8、其余要求
外形示意图
在运行过程中,杂物可能进入牵引链中,将链条卡死,故设计了封闭式牵引链。其主要有链板、链销和滚轮组成,运行时由机架上的导轨作导向,滚轮在导轨上作滚动运动,阻力小且运转平稳。
水下回转轮定位采用不锈钢材质,配以耐磨铜套自润滑轴承,免去水下部件的日常维护。
挡渣部分采用固定栅条形式,有较强的耐冲击力,能承受较大的水位差。
基于以上优点,反捞式格栅应用于较宽的河道拦污、雨水泵站、河道取水口、污水厂粗格栅等大流量的水处理场所。
订货参数
1、渠道(设备)宽度 2、渠道深度 3、出料高度 4、耙齿间隙 5、安装角度 6、机架材质 7、耙齿材质 8、其余要求
外形示意图

B=机宽; H=渠深; H1=出渣高度; H2=H+H1+2000; α=安装角度。
过水流量计算
反捞式格栅每小时过水流量:Q=K*(B-160)*h*V*3600,其中:
Q=过水流量(m³/h);K=与格栅间隙有关的流量系数(见系数表);B=格栅机宽(m);h=栅前水深(m),一般按1m或低于渠深0.3m以上;V=过流速度,一般取0.6~1m/s。
主要技术参数
注:可以采用插值法得出其他间隙对应K值的近似值。
过水流量计算
反捞式格栅每小时过水流量:Q=K*(B-160)*h*V*3600,其中:
Q=过水流量(m³/h);K=与格栅间隙有关的流量系数(见系数表);B=格栅机宽(m);h=栅前水深(m),一般按1m或低于渠深0.3m以上;V=过流速度,一般取0.6~1m/s。
主要技术参数
过流系数K
| 格栅间隙(mm) | 15 | 20 | 30 | 50 | 80 | 100 | >100 |
| 流量系数K | 0.42 | 0.5 | 0.6 | 0.71 | 0.8 | 0.83 | 0.85 |
ZHG反捞式格栅除污机主要技术参数及外形尺寸列表
|
型号 (ZHG) |
设备宽度 (mm) |
沟宽 (mm) |
电机功率 (kw) | 过水流量(m³/h) | |||||
| 格栅间隙 (mm) | |||||||||
| 15 | 20 | 30 | 50 | 80 | 100 | ||||
| 800 | 800 | 900 | 1.1 | 581 | 691 | 829 | 982 | 1106 | 1147 |
| 1000 | 1000 | 1100 | 762 | 907 | 1089 | 1288 | 1452 | 1506 | |
| 1200 | 1200 | 1300 | 1.1~1.5 | 943 | 1123 | 1348 | 1595 | 1797 | 1865 |
| 1400 | 1400 | 1500 | 1125 | 1339 | 1607 | 1902 | 2143 | 2223 | |
| 1600 | 1600 | 1700 | 1306 | 1555 | 1866 | 2208 | 2488 | 2582 | |
| 1800 | 1800 | 1900 | 1488 | 1771 | 2125 | 2515 | 2834 | 2940 | |
| 2000 | 2000 | 2100 | 1669 | 1987 | 2385 | 2822 | 3180 | 3299 | |
| 2200 | 2200 | 2300 | 1851 | 2203 | 2644 | 3129 | 3525 | 3657 | |
| 2400 | 2400 | 2500 | 2032 | 2419 | 2903 | 3435 | 3871 | 4016 | |
| 2600 | 2600 | 2700 | 1.5~2.2 | 2214 | 2635 | 3162 | 3742 | 4216 | 4374 |
| 2800 | 2800 | 2900 | 2395 | 2851 | 3421 | 4049 | 4562 | 4733 | |
| 3000 | 3000 | 3100 | 2576 | 3067 | 3681 | 4355 | 4908 | 5092 | |
上一篇:WBF转刷网蓖式格栅除污机
下一篇:网板式阶梯格栅除污机



苏公网安备32028202232131号